乐鱼官方版网站登录入口

涂布CCD检测系统

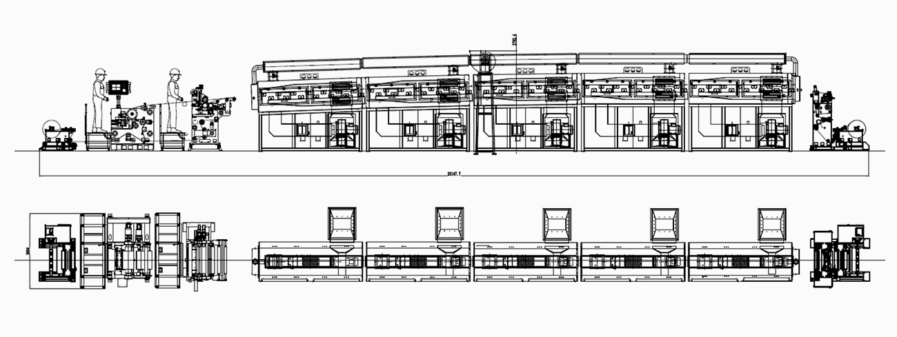
01-涂布CCD检测系统大图.jpg


名称

参数

检测速度:

≤120m/min

检测幅宽:

700mm-1550mm

分辨率:

0.024mm/pix(横向); 0.048mm/pulse(纵向)

尺寸检测精度:

±0.1mm

缺陷检测精度:

0.5mm*0.5mm

检测单面条数:

≤4条

过杀率/漏杀率:

错判:0%,误判:≤0.1% GRR≤10%(标准公差为±0.6mm)

缺陷和涂膜的灰度偏差需满足≥30

设备外形尺寸:

兼容设备厂家

检测内容:宽度、对齐度、缺陷

1)涂层宽度:

湿料、干料(全幅宽、AB面涂宽、留白宽度、陶瓷宽度)

2)对齐度:

在A面干料和B面湿料的工位测量AB面的对齐度。

3)缺陷检测:

污物、表面破损、划痕、条痕、气泡、漏金属。

适用工艺:

挤压、转移、凹版

1)涂布工艺:

连续涂布、条纹涂布、间歇涂布及间歇条纹涂布。

2)产品工艺:

兼容AT9及凹板